方通天花:又叫铝方通、铝方管、方管天花、方通吊顶,常用的有u型方通和v型方通。
常见的方通规格:面宽(W):20mm-50mm;高度(H):50mm-300mm。
方通天花的特点:
(1)方通天花极具方向性,棱角线清晰明朗,立体感强烈。
(2)方通天花通透开阔,便于空气流通好排气散热。
(3)通透的安装方法,便于施工,装拆简易快捷。
(4)可通过悬挂不同的高度来调节装饰空间的视觉高度。
(5)易于布置风口、空调、照明、喷淋等设施,充分有效的利用空间。
(6)方通天花可搭配各种不同颜色,引入不同的灯光效果,悬挂不等的高度,展示不同的装饰风格,使整个空间充满艺术韵味。
(7)能根据不同的环境要求和工程的实际情况定制。
(8)工艺性好,采用先加工再喷涂工艺,涂层均匀,色彩各样。
(9)节能环保、耐候性、耐久性和耐腐蚀性好,使用优质涂层处理可达25年不退色。

产品优势:
产品有着开透、吸音装饰等功能,并且具备现代时尚的超前效果。通过面板高度、方向以及照明和颜色的变化,将吊顶表现得更加通透,时尚视觉极强。


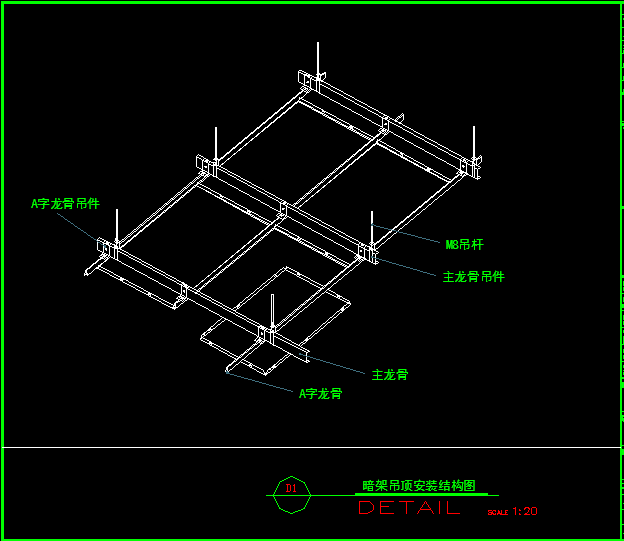
方通安装结构图:


产品适用范围:
U型方通广泛适用于走廊、酒吧、写字楼、图书馆、地铁站、高铁站、车站、机场、大型购物商场、通道、公共休闲场所、大型购物商场、通道、公共休闲场所等开放场所。



